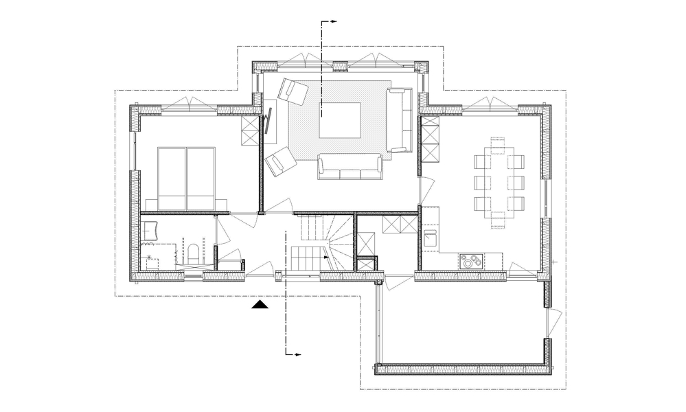
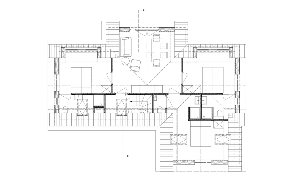
Op een vrije kavel met veel groen eromheen stond een kleine recreatiewoning uit de jaren ’60. Hoewel de basis degelijk was, voldeden de ruimtes niet meer aan de wensen van deze tijd. De opdrachtgevers wilden de woning zo duurzaam en circulair mogelijk verbouwen en uitbreiden. Dat leidde tot interessante discussies: wat betekent circulair bouwen eigenlijk? Gaat het om hergebruik van bestaande materialen, om het toepassen van hernieuwbare grondstoffen, of om de mogelijkheid om alles later weer uit elkaar te halen? En hoe verhoudt zich dat tot het gebruik van beton voor funderingen en vloeren?
De woning ligt in een recreatiegebied, maar kan een vrijstelling krijgen voor permanent gebruik. In het eerste ontwerp kozen we ervoor de bestaande woning te behouden en te voorzien van een nieuwe schil met een optopping. Het streven was om zoveel mogelijk materiaal te hergebruiken. Uiteindelijk bleek sloop en nieuwbouw toch de beste keuze, omdat de oriëntatie van de woning en het gebruik van de tuin anders niet optimaal zouden zijn.
De nieuwe houtskeletbouw is biobased geïsoleerd met houtvezelplaten. Een volledig elektrische warmtepomp verzorgt de verwarming en het warme water. Ondergronds is een wateropslag aangelegd die regenwater levert voor de tuin en de toiletspoeling. Alle ruimtes op de begane grond zijn bovendien toegankelijk gemaakt voor rolstoelgebruikers. Op verzoek van de gemeente zijn andere materialen voor gevel en dak toegepast en kwamen de dakkapellen en de zomernacht-ventilatieroosters te vervallen.
Foto’s: Inplus
Constructeur en vergunning: Advies- en tekenburo bouwkunde R. Willems





